Baugrundstück mit Baugenehmigung | Rendite trifft auf Qualität
Hamburg - Iserbrook, Deutschland
Kaufpreis:
1.090.000 Euro
Eckdaten
Objekt ID: | N-0346 |
---|---|
Grundstücksfläche: | ca. 1.014 m² |
Wohnfläche: | ca. 382 m² |
Kaufpreis: | 1.090.000 EUR |
Objektbeschreibung
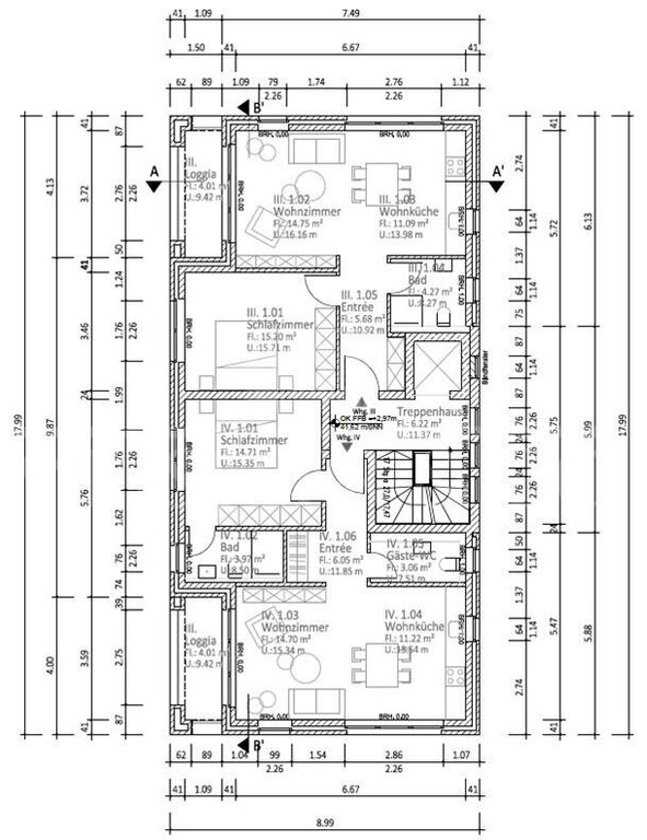
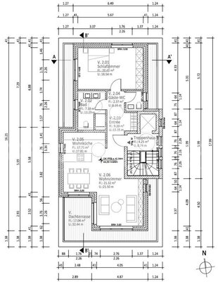
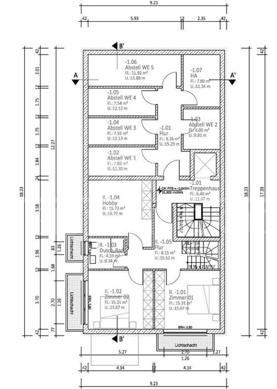
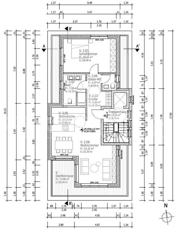
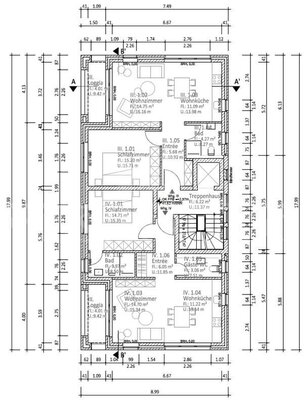
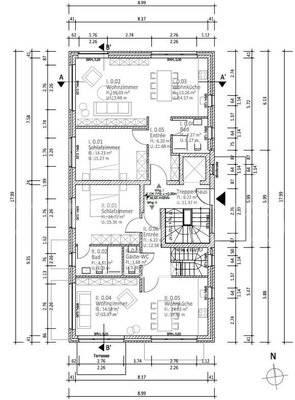
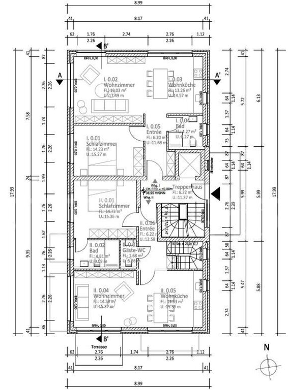
Auf dem 1.014 m² großen Grundstück liegt bereits eine genehmigte Planung für ein hochwertiges Mehrfamilienhaus mit 5 Wohneinheiten und insgesamt ca. 382 m² Wohnfläche vor.
Das durchdachte Konzept kombiniert zeitgemäße Architektur mit gehobenem Wohnkomfort und bietet ideale Voraussetzungen für ein renditestarkes Neubauprojekt.
Die geplanten Einheiten reichen von kompakten Zwei-Zimmer-Wohnungen bis hin zu einer großzügigen Maisonette und einer exklusiven Dachgeschosswohnung mit großer Südterrasse – jeweils mit lichtdurchfluteten Grundrissen, Loggien oder Terrassen sowie barrierefreiem Zugang über einen Aufzug.
Besonders interessant für Kapitalanleger:
• hohe Sonderabschreibungsmöglichkeiten beim Bau eines QNG zertifizerten Gebäude
• KfW-Förderkredite - Zinsgünstige Finanzierung
• hohes Wertsteigerungspotenzial für Gebäude mit QNG Standard
• flexible Exit-Strategie - Einzelveräußerung der Wohnungen möglich
• Verkauf nach 10 Jahren steuerfrei möglich (bei Privatvermögen - §23 ESTGB)
• geringes Vermarktungsrisiko - hohe Nachfrage nach Wohnraum
Lage
Das Baugrundstück befindet sich in einer ruhigen und zugleich hervorragend angebundenen Wohnstraße zwischen den begehrten Stadtteilen Hochkamp und Blankenese im Bereich Iserbrook, Gemarkung Dockenhuden. Die Umgebung zeichnet sich durch eine harmonische Bebauung mit gepflegten Einfamilien- und kleinen Mehrfamilienhäusern aus, eingebettet in großzügige Gärten mit altem Baumbestand.
Für den täglichen Bedarf stehen zahlreiche Einkaufsmöglichkeiten im Ortskern von Blankenese, in Osdorf sowie im Elbe-Einkaufszentrum zur Verfügung. Bildungseinrichtungen, darunter Kindergärten sowie Grund- und weiterführende Schulen, sind bequem erreichbar und machen die Lage besonders attraktiv für Familien. Das Freizeitangebot in der Umgebung ist vielfältig: diverse Sportvereine bieten Aktivitäten wie Reiten, Golf, Tennis und Hockey an. Zudem laden Parks, die nahe gelegene Elbe, der Waldpark Marienhöhe sowie das weitläufige Naherholungsgebiet Klövensteen zu erholsamen Ausflügen ein – alles nur wenige Minuten entfernt. Die Verkehrsanbindung ist sehr gut, verschiedene Buslinien und die S-Bahnstationen Blankenese sowie Hochkamp sorgen für eine schnelle und komfortable Erreichbarkeit des Hamburger Stadtzentrums, das in etwa 30 Minuten erreichbar ist. Diese Lage bietet beste Voraussetzungen für ein attraktives und nachhaltig vermietbares Wohnprojekt.
Courtage
Bei wirksamem Abschluss eines notariellen Kaufvertrages ist eine Maklercourtage in Höhe von 6,25 % inkl. 19 % ges. MwSt., bezogen auf den vereinbarten Kaufpreis, verdient und fällig und vom Käufer an die Firma MEISSLER & CO zu zahlen, die hierdurch einen unmittelbaren Zahlungsanspruch gegenüber dem Käufer erhält. Die Grunderwerbsteuer sowie die Notar- und Gerichtskosten sind vom Käufer zu tragen. Alle Angaben über diese Immobilie beruhen auf Informationen, die uns der Auftraggeber zur Verfügung gestellt hat. Für die Richtigkeit, Aktualität und Vollständigkeit dieser Angaben übernehmen wir keine Gewähr. Irrtum und Zwischenverkauf vorbehalten.
Kontakt

Büro Blankenese
Blankeneser Bahnhofstraße 8
22587 Hamburg
Tel. (040) 86 14 86
Fax. (040) 86 64 50 15
Alternative Objekte
Kaufen, Haus, Hamburg - Blankenese, Deutschland
ca. 176 m²
Wohnfläche5,5
Zimmer890 m²
GrundstückKaufen, Haus, Hamburg - Groß Flottbek, Deutschland
ca. 197 m²
Wohnfläche5,5
Zimmer510 m²
GrundstückKaufen, Haus, Hamburg - Othmarschen, Deutschland
ca. 125 m²
Wohnfläche4
Zimmer4.218 m²
Grundstück