Bungalow mit Südwestgarten

Hamburg, Deutschland

Kaufpreis:

1.150.000 Euro


Eckdaten

Objekt ID: N-0351
Baujahr: 1974
Art des Energieausweises: bedarfsorientiert
Endenergiebedarf: 355.00 kWh/m²
Grundstücksfläche: ca. 511 m²
Wohnfläche: ca. 157 m²
Zimmer: 4
Schlafzimmer: 2
Bäder: 2
Garage/Stellplätze: 2
Kaufpreis: 1.150.000 EUR

Objektbeschreibung

Am Ende einer Stichstraße, die mit eingeschossigen Bungalows in hellem Klinkerstein bebaut ist, präsentiert sich dieser familienfreundliche Bungalow. Das zum Südwesten orientierte Grundstück mit einer Fläche von 511 m² ist pflegeleicht angelegt und bietet viel Privatsphäre.

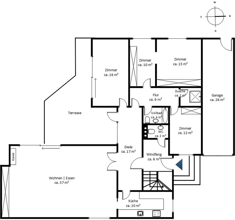
Das Raumkonzept des in 1974 errichteten Bungalows beschreibt einen großen Wohn- und Essbereich, der wie das Arbeitszimmer zum offen gehaltenen Innenhof ausgerichtet ist. Diese Bauweise sorgt im Wohnbereich für zusätzlichen Lichteinfall und im Außenbereich für mehr Privatsphäre. Der klassische Kamin vermittelt viel Behaglichkeit und wertet den großzügigen Wohnraum optisch auf. Die bodentiefen Fensterelemente geben den Blick in den wenig einsehbaren Garten frei.

Der private Bereich des Bungalows verfügt über ein Elternschlafzimmer mit benachbarter Ankleide, die mit wenig Aufwand wieder in ein separates Zimmer umgebaut werden könnte. Ein weiteres Zimmer, ein Vollbad und ein Duschbad ergänzen diesen Bereich. Zum Nordosten ausgerichtet sind die Küche und die Diele gelegen. Der Eingangsbereich mit Garderobe ergänzt das Raumangebot dieser Immobilie.
Mit ca. 157 m² reiner Wohnfläche zuzüglich der großen Terrasse bietet diese Immobilie einen gelungenen Grundriss mit vielen Optionen.

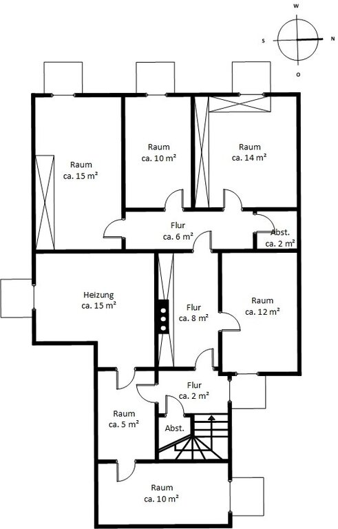
Der Bungalow ist bis auf den Wohn-/Essbereich unterkellert und bietet im Untergeschoss mit einer Nutzfläche von ca. 100 m² die üblichen Nutzräume.
Eine ca. 28 m² große Garage mit Platz für ein bis zwei Autos hat ebenfalls einen Zugang in den Garten und befindet sich direkt am Haus.

Ausstattung

Einbauküche
Keller
Boden Fliesen
Garten
Kamin / Ofen

Lage

In einer ruhigen Anwohnerstraße im nördlichen Bereich des Villenviertels Hochkamp ist dieser familienfreundliche Bungalow gelegen. Das ruhige aber dennoch stadtnahe Wohnen und die gute Infrastruktur verleihen dieser Lage viel Attraktivität. Kindergärten, Grundschulen und Gymnasien sowie Einkaufsmöglichkeiten für den täglichen Bedarf sind im Ortskern von Nienstedten, im nahe gelegenen Elbe-Einkaufszentrum oder auch im idyllischen Alt-Osdorf am Rugenbarg in nur wenigen Minuten bequem zu erreichen. Zahlreiche Freizeitmöglichkeiten wie Golf, Reiten, Tennis, Hockey und Segeln sowie die großen Landschaftsparks der Elbvororte und die Elbe befinden sich in unmittelbarer Umgebung. Die Anbindung an die öffentlichen Verkehrmittel ist durch diverse Buslinien und durch die S-Bahnstation Hochkamp gegeben.


Courtage

3,57 % inkl. ges. MwSt.

Kontakt

Büro Blankenese

Blankeneser Bahnhofstraße 8
22587 Hamburg

Tel. (040) 86 44 44
Fax. (040) 86 64 50 15

Alternative Objekte

Kaufen, Wohnung, Hamburg - Lokstedt, Deutschland

ca. 67 m²

Wohnfläche

2

Zimmer

Kaufen, Wohnung, Hamburg - Blankenese, Deutschland

ca. 97 m²

Wohnfläche

3

Zimmer

Kaufen, Haus, Hamburg - Blankenese, Deutschland

ca. 176 m²

Wohnfläche

5,5

Zimmer

890 m²

Grundstück