Der beste Blick - Wohnen auf dem Süllberg

Hamburg - Blankenese, Deutschland

Kaufpreis:

4.800.000 Euro


Eckdaten

Objekt ID: N-0252
Baujahr: 2002
Art des Energieausweises: bedarfsorientiert
Endenergiebedarf: 73.10 kWh/m²
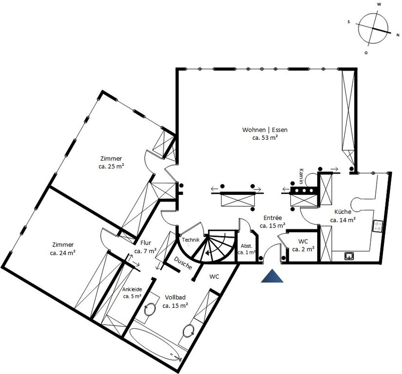
Wohnfläche: ca. 236 m²
Zimmer: 4,5
Schlafzimmer: 2,5
Bäder: 2
Garage/Stellplätze: 3
Kaufpreis: 4.800.000 EUR

Objektbeschreibung

Diese außergewöhnliche Wohnung vereint auf beeindruckende Weise Eleganz und Exklusivität. Die Lage auf dem höchsten Punkt des Süllbergs ist wirklich einzigartig und bietet einen atemberaubenden Blick auf die Elbe, der bis weit ins Alte Land reicht – ein Ausblick, den man in Hamburg nur selten finden wird.

Die großzügige Wohnfläche von ca. 236 m² erstreckt sich über zwei Etagen und beeindruckt durch ihre klare und repräsentative Raumaufteilung. Im unteren Bereich befindet sich das stilvolle Wohnzimmer, das durch exquisite Tischlerarbeiten und edle Materialien besticht. Die helle, im Landhausstil gehaltene Küche öffnet sich zum angrenzenden Esszimmer. Zwei großzügige Schlafzimmer, ein elegantes Bad mit edlem Marmor und eine hochwertig ausgestattete Ankleide bieten höchsten Komfort. Die lichtdurchfluteten Räume gewähren nahezu überall einen spektakulären Blick auf die Elbe. Alle Einbauten wurden maßgefertigt, und bei der Wahl der Materialien wurde auf höchste Qualität geachtet.

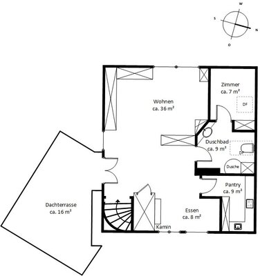
Über eine interne Treppe gelangt man in die Staffelgeschossebene, die mit einem beeindruckenden Elbblick aufwartet. Hier befinden sich ein lichtdurchfluteter Salon, eine Pantryküche, ein weiteres Bad und ein gemütliches Gästezimmer – stilvoll und funktional zugleich. Das absolute Highlight ist die großzügige Dachterrasse, die einen unvergleichlichen Panorama-Blick auf die Elbe bietet. Vom Hamburger Hafen im Osten bis zu den Elbinseln im Westen erstreckt sich der Ausblick – ein wirklich einzigartiges Erlebnis.

Zur Wohnung gehören drei Tiefgaragenstellplätze sowie ein geräumiger Kellerraum.

Ausstattung

Einbauküche
Kamin / Ofen
Pool
Aufzug

Lage

Der Süllberg gilt über die Stadtgrenzen von Hamburg hinaus als einzigartige Lage im exklusiven Blankenese und ist seit jeher ein begehrter Ort für diejenigen, die das Besondere suchen. Hier lässt sich der Traum vom Elbblick auf unvergleichliche Weise verwirklichen. Blankenese selbst überzeugt mit einem charmanten Ortskern, der alle Annehmlichkeiten des täglichen Lebens bietet. Der beliebte Wochenmarkt, gemütliche Cafés und Restaurants, Arztpraxen und zahlreiche Einzelhandelsgeschäfte sorgen für ein vielfältiges Angebot. Zudem ist die S-Bahn Station Blankenese bestens angebunden und ermöglicht eine schnelle Verbindung ins Hamburger Stadtzentrum sowie zum internationalen Flughafen.


Courtage

3,57 % inkl. MwSt.

Kontakt

Büro Blankenese

Blankeneser Bahnhofstraße 8
22587 Hamburg

Tel. (040) 86 44 44
Fax. (040) 86 64 50 15

Alternative Objekte

Kaufen, Haus, Hamburg - Rissen, Deutschland

ca. 144 m²

Wohnfläche

5

Zimmer

1.466 m²

Grundstück

Kaufen, Grundstück, Hamburg - Rissen, Deutschland

1.466 m²

Grundstück

Kaufen, Haus, Hamburg - Hochkamp, Deutschland

ca. 189 m²

Wohnfläche

5,5

Zimmer

1.501 m²

Grundstück