Ein Fenster zur Elbe

Hamburg - Blankenese, Deutschland

Kaufpreis:

865.000 Euro


Eckdaten

Objekt ID: W-0022
Baujahr: 1981
Art des Energieausweises: bedarfsorientiert
Endenergiebedarf: 134.00 kWh/m²
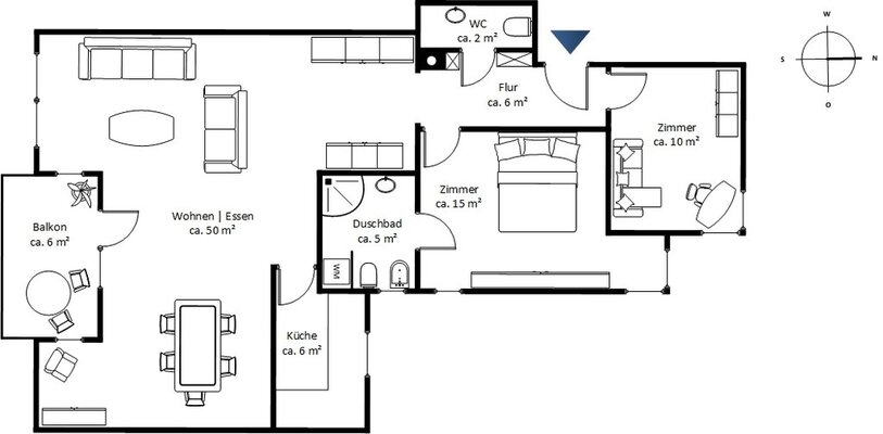
Wohnfläche: ca. 97 m²
Zimmer: 3
Schlafzimmer: 2
Bäder: 1
Garage/Stellplätze: 1
Kaufpreis: 865.000 EUR

Objektbeschreibung

Direkt an der Strandpromenade, unweit des Leuchtturms von Blankenese, befindet sich die hier angebotene Eigentumswohnung. Das Baujahr des Mehrparteienhauses lässt sich auf 1981 datieren. Es ist in sechs Wohneinheiten unterteilt. Die Wohnung mit einem gemütlichen, zum Strand ausgerichteten Balkon befindet sich im Hochparterre und bietet einen weitläufigen Blick auf den Verlauf der Elbe und auf die vorbeiziehenden Schiffe.

Die Wohnung befindet sich in einem sanierungsbedürftigen Zustand und bietet somit eine hervorragende Grundlage, um individuellen Wohnvorstellungen Raum zu geben. Sie verfügt über einen großzügigen Wohn- und Essbereich mit offenem Holzkamin. Von hier aus hat man einen herrlichen Blick auf die Elbe. Die angrenzende Küche befindet sich in nördlicher Ausrichtung und lässt die Möglichkeit eines offenen Küchenkonzeptes zu. Zwei Schlafzimmer befinden sich im hinteren Teil der Wohnung. Ein Duschbad en Suite mit Waschmaschinenanschluss und Fenster befindet sich hinter der Küche. Ein Gäste-WC ist weiterer Bestandteil dieser Wohnung.

Mit Sinn für Stil und Liebe zum Detail lässt sich hier ein stilvolles Zuhause gestalten, das den besonderen Charme der Lage am Blankeneser Elbufer in Verbindung mit einem modernen Wohnkomforts widerspiegelt. Eine private Treppe führt sie unmittelbar hinunter an den Elbstrand.

Die Beheizung des Hauses erfolgt über eine Gaszentralheizung. Die Dichtheitsprüfung ist 2023 erfolgreich durchgeführt worden.

Ein zur Wohnung gehörender Garagenstellplatz stellt in dieser Lage ein echtes Highlight dar, da Stellplätze hier äußerst rar und entsprechend begehrt sind. Ein Abstellraum für Fahrräder steht der Wohnung ebenfalls zur Verfügung.

Ausstattung

Einbauküche
Keller
Kamin / Ofen

Lage

Diese Immobilie befindet sich nur wenige Meter vom Elbstrand entfernt im bevorzugten Elbvorort Blankenese, einer der schönsten Wohnlagen Deutschlands. Das Treppenviertel ist mit seinen verwinkelten Gassen und seinen am Elbhang liegenden Villen und Häusern, die ein mediterranes Flair ausstrahlen und einen traumhaften Elbblick bieten, als beschauliches Kleinod zu bezeichnen. Das Elbufer bietet zu jeder Jahreszeit Naherholung und eine einmalige Wohn- und Lebensqualität. Die sogenannte Bergziege, ein wendiger Kleinbus der HVV Buslinie 48, schlängelt sich durch das Treppenviertel und verbindet es mit dem S-Bahnhof Blankenese und mit dem Ortszentrum. Hier bieten der traditionelle Wochenmarkt und eine Vielzahl an kleinen Boutiquen und Einzelhandelsgeschäften, Cafés und Restaurants sowie viele weitere Geschäfte alles für den täglichen Bedarf. Kindergärten sowie Grund- und weiterführende Schulen befinden sich in der näheren Umgebung.


Courtage

3,57 % inkl. ges. MwSt.

Kontakt

Büro Blankenese

Blankeneser Bahnhofstraße 8
22587 Hamburg

Tel. (040) 86 44 44
Fax. (040) 86 64 50 15

Alternative Objekte

Kaufen, Wohnung, Hamburg - Othmarschen, Deutschland

ca. 219 m²

Wohnfläche

5

Zimmer

Kaufen, Haus, Hamburg - Blankenese, Deutschland

ca. 176 m²

Wohnfläche

5,5

Zimmer

890 m²

Grundstück

Kaufen, Wohnung, Hamburg - Blankenese, Deutschland

ca. 236 m²

Wohnfläche

4,5

Zimmer