Familienvilla in Bestlage von Othmarschen
Hamburg - Othmarschen, Deutschland
Kaufpreis:
3.490.000 Euro
Eckdaten
| Objekt ID: | W-008 |
|---|---|
| Baujahr: | 1931 |
| Art des Energieausweises: | bedarfsorientiert |
| Endenergiebedarf: | 216.70 kWh/m² |
| Grundstücksfläche: | ca. 2.941 m² |
| Wohnfläche: | ca. 365 m² |
| Zimmer: | 10 |
| Schlafzimmer: | 8 |
| Bäder: | 4 |
| Kaufpreis: | 3.490.000 EUR |
Objektbeschreibung
Diese Villa von 1931 bietet ein außergewöhnliches Wohnambiente direkt am Ufer eines privaten Sees. Auf einem ca. 2.941 m² großen, parkähnlichen Grundstück mit altem Baumbestand genießen Sie höchste Privatsphäre und eine seltene Kombination aus Natur, Exklusivität und Wohnkomfort.
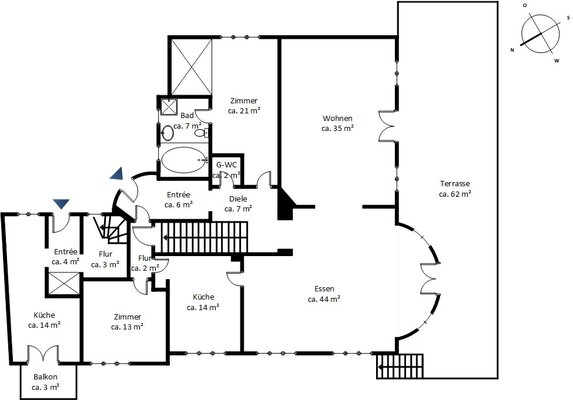
Im Inneren verbindet die Villa großzügige Räume mit historischem Charme und modernen Akzenten. Das Entrée führt in den Wohn- und Essbereich mit Blick ins Grüne und Zugang zur großen Terrasse. Hochwertige venezianische Spachteltechnik verleiht den Wänden eine edle Anmutung, ein Kamin sorgt für wohltuende Atmosphäre. Zwei weitere Zimmer, ein Bad und ein Gäste-WC vervollständigen das Erdgeschoss.
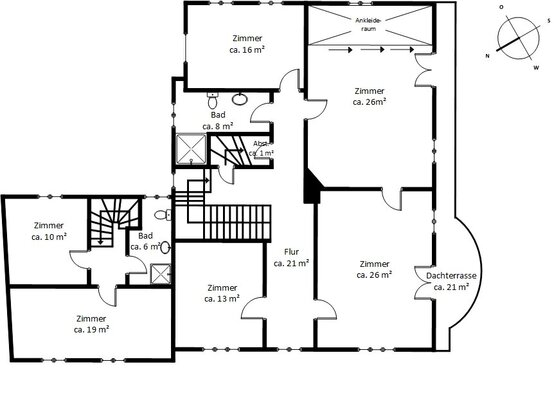
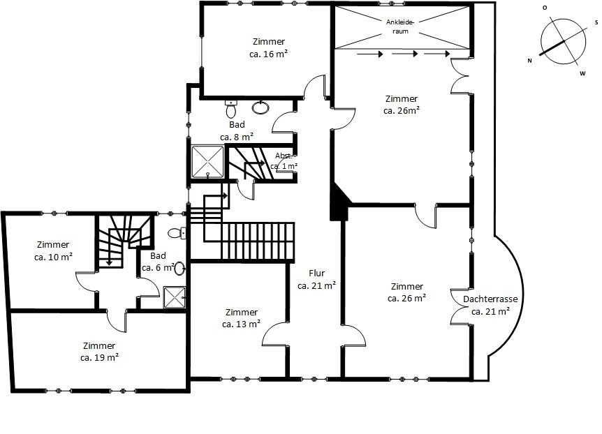
Im Obergeschoss stehen vier Schlafzimmer und ein großes Bad zur Verfügung. Eine Einliegerwohnung mit separatem Eingang erweitert das Raumangebot, ist jedoch sanierungsbedürftig. Insgesamt bietet die Villa ca. 365 m² Wohnfläche; ein großer Spitzboden (ca. 98 m² Nutzfläche) bietet weiteren Stauraum.
Das Untergeschoss verfügt über Sauna, Bar, Fitnessraum und Abstellflächen (ca. 173 m²). Wichtige Modernisierungen wurden bereits durchgeführt: Dach, Dämmung und Dachstuhl 2013, Heizung und Großteil der Fenster 2021.
Mehrere Stellplätze sowie ein überdachter Unterstand runden dieses exklusive Seeanwesen in Othmarschen ab.
Ausstattung
| Einbauküche | |
|---|---|
| Keller | |
| Boden | Parkett |
| Kamin / Ofen |
Lage
Othmarschen im Hamburger Westen besticht durch seine idyllische Lage an der Elbe und seine grünen, gepflegten Wohnstraßen. Historische Architektur und ein einladendes Ambiente schaffen eine harmonische Mischung aus urbanem Lebensstil und natürlicher Schönheit. Die nahe Waitzstraße mit individuellen Boutiquen, Cafés und Restaurants sowie vielfältige Sportmöglichkeiten bieten hohen Komfort und Lebensqualität.
Parks, Grünflächen und das Elbufer laden zu Spaziergängen, Erholung und Aktivitäten im Freien ein. Othmarschen überzeugt zudem mit kultureller Vielfalt: Galerien, lokale Veranstaltungen und ein lebendiges Miteinander prägen das Viertel. Ausgezeichnete Schulen und die sehr gute Verkehrsanbindung machen Othmarschen zu einem begehrten Wohnort für Familien, Paare und Menschen, die eine besondere Wohnlage mit Wohlfühlatmosphäre suchen.
Courtage
3,57 % inkl. MwSt.
Kontakt
Büro Blankenese
Blankeneser Bahnhofstraße 8
22587 Hamburg
Tel. (040) 86 44 44
Fax. (040) 86 64 50 15
Alternative Objekte
Kaufen, Haus, Hamburg - Groß Flottbek, Deutschland
ca. 197 m²
Wohnfläche5,5
Zimmer510 m²
GrundstückKaufen, Haus, Hamburg - Uhlenhorst, Deutschland
ca. 420 m²
Wohnfläche8
Zimmer650 m²
GrundstückKaufen, Haus, Hamburg - Alsterdorf, Deutschland
ca. 435 m²
Wohnfläche12,5
Zimmer1.184 m²
Grundstück