Stadtvilla mit Garten

Hamburg - Blankenese, Deutschland

Kaufpreis:

1.550.000 Euro


Eckdaten

Objekt ID: B-0557
Baujahr: 2011
Art des Energieausweises: bedarfsorientiert
Endenergiebedarf: 54.70 kWh/m²
Grundstücksfläche: ca. 210 m²
Wohnfläche: ca. 181 m²
Zimmer: 5
Schlafzimmer: 4
Bäder: 2
Garage/Stellplätze: 1
Kaufpreis: 1.550.000 EUR

Objektbeschreibung

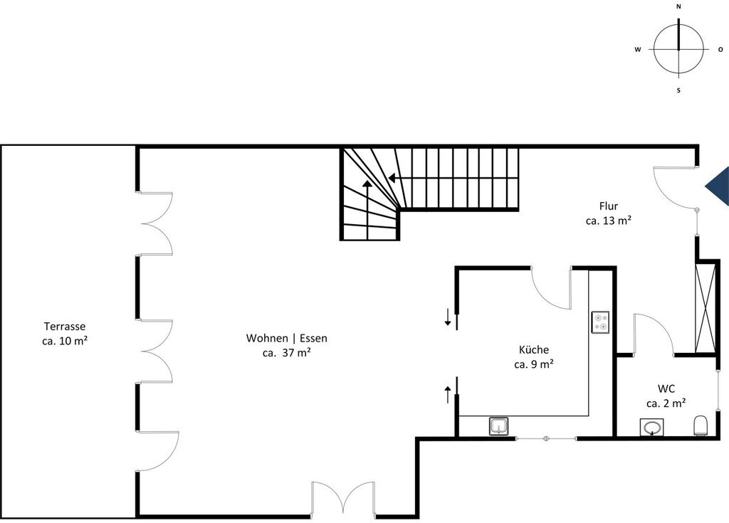
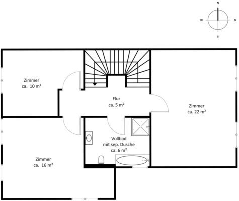
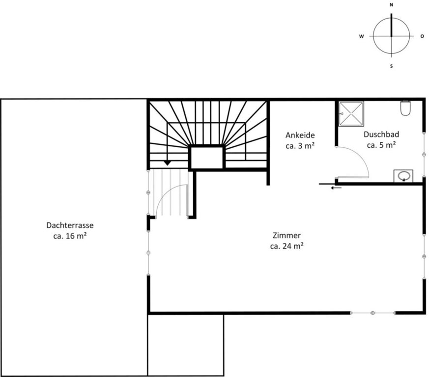
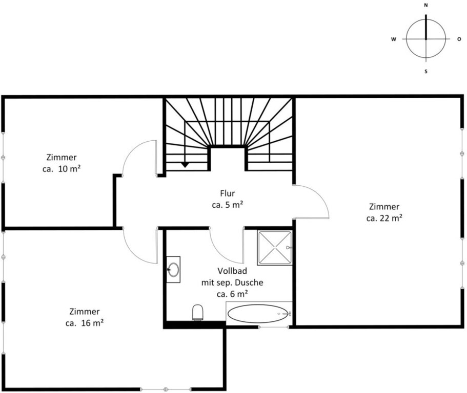
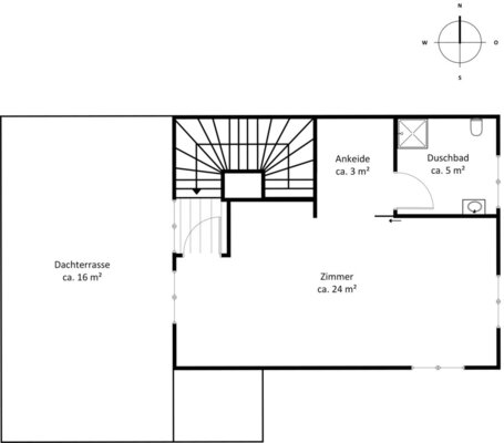
Das angebotene Reihenendhaus überzeugt mit einer Wohnfläche von etwa 181 m² und einem besonders großzügigen, familiengerechten Grundriss. Im Erdgeschoss empfängt ein schönes Entré, gefolgt von einem lichtdurchfluteten Wohn- und Essbereich, einer modernen, weißen Einbauküche mit zahlreichen elektrischen Geräten sowie einem Gäste-WC. Das erste Obergeschoss bietet drei geräumige Schlafzimmer mit bodentiefen Fenstern und ein komfortables Vollbad mit separater Dusche. Im Dachgeschoss befindet sich ein helles Studio mit Zugang zur Dachterrasse und einem vorgelagerten Duschbad. Der komfortable Kellerbereich umfasst einen großen Hobbyraum, der das Raumangebot optimal ergänzt. Sämtliche Wohnebenen sind über eine anthrazitfarbene Treppe verbunden; Fenster und Türen sind farblich darauf abgestimmt.

Zur hochwertigen und modernen Ausstattung des Hauses zählen ein großzügiger Grundriss, große bodentiefe Fenster, ein Hauptschlafzimmer mit separatem Ankleidebereich, Duschbad und Dachterrasse, Plissés im Erdgeschoss sowie Verdunklungsrollos im ersten und zweiten Obergeschoss. Die Wohn- und Schlafzimmer verfügen über Netzwerkverkabelung. Für angenehmen Wohnkomfort sorgen eine Fußbodenheizung und Eichenparkett in Dielenoptik; Flur, Küche und Bäder sind mit hochwertigen Fliesen ausgestattet. Ein Stellplatz und ein Schuppen sind dem Haus ebenfalls zugeordnet.

Ausstattung

Einbauküche
Keller

Lage

Das Endreihenhaus befindet sich in einer sehr ruhigen Straße und liegt in einem bevorzugten Wohngebiet von Blankenese. Das Umfeld besteht aus wunderschönen, gepflegten Einfamilienhäusern und Rotklinkern. Das Gymnasium Willhöden sowie weitere Schulen und Kindergärten im nahe gelegenen Zentrum von Blankenese machen diese Lage gerade für Familien mit Kindern sehr interessant. Herrliche Parks und die Nähe zur Elbe bieten einen hohen Wohn- und Freizeitwert. Eine hervorragende Infrastruktur im Ortskern von Blankenese mit zahlreichen Einkaufsmöglichkeiten und kurzen Wegen zu Kindergärten, Grundschulen und Gymnasien sowie eine optimale Verkehrsanbindung ist gegeben.


Courtage

3,57 % inkl. MwSt.

Kontakt

Büro Blankenese

Blankeneser Bahnhofstraße 8
22587 Hamburg

Tel. (040) 86 44 44
Fax. (040) 86 64 50 15

Alternative Objekte

Kaufen, Haus, Hamburg - Rissen, Deutschland

ca. 532 m²

Wohnfläche

11

Zimmer

3.010 m²

Grundstück

Kaufen, Wohnung, Hamburg - Blankenese, Deutschland

ca. 126 m²

Wohnfläche

4

Zimmer

Kaufen, Haus, Hamburg - Blankenese, Deutschland

ca. 176 m²

Wohnfläche

5,5

Zimmer

890 m²

Grundstück