Ein Refugium am See

Hamburg - Othmarschen, Deutschland

Kaufpreis:

3.490.000 Euro


Eckdaten

Objekt ID: W-008
Baujahr: 1931
Art des Energieausweises: bedarfsorientiert
Endenergiebedarf: 216.70 kWh/m²
Grundstücksfläche: ca. 2.941 m²
Wohnfläche: ca. 365 m²
Zimmer: 10
Schlafzimmer: 8
Bäder: 4
Kaufpreis: 3.490.000 EUR

Objektbeschreibung

Diese Villa von 1931 bietet ein außergewöhnliches Wohnambiente direkt am Ufer eines privaten Sees. Auf einem ca. 2.941 m² großen, parkähnlichen Grundstück mit altem Baumbestand genießen Sie höchste Privatsphäre und eine seltene Kombination aus Natur, Exklusivität und Wohnkomfort.

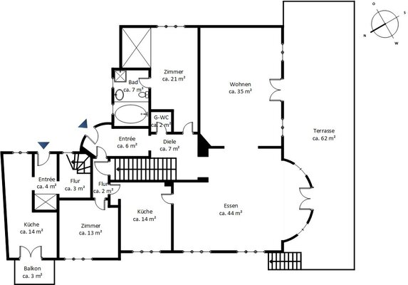
Im Inneren verbindet die Villa großzügige Räume mit historischem Charme und modernen Akzenten. Das Entrée führt in den Wohn- und Essbereich mit Blick ins Grüne und Zugang zur großen Terrasse. Hochwertige venezianische Spachteltechnik verleiht den Wänden eine edle Anmutung, ein Kamin sorgt für wohltuende Atmosphäre. Zwei weitere Zimmer, ein Bad und ein Gäste-WC vervollständigen das Erdgeschoss.

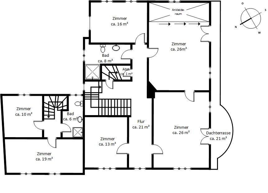
Im Obergeschoss stehen vier Schlafzimmer und ein großes Bad zur Verfügung. Eine Einliegerwohnung mit separatem Eingang erweitert das Raumangebot, ist jedoch sanierungsbedürftig. Insgesamt bietet die Villa ca. 365 m² Wohnfläche; ein großer Spitzboden (ca. 98 m² Nutzfläche) bietet weiteren Stauraum.

Das Untergeschoss verfügt über Sauna, Bar, Fitnessraum und Abstellflächen (ca. 173 m²). Wichtige Modernisierungen wurden bereits durchgeführt: Dach, Dämmung und Dachstuhl 2013, Heizung und Großteil der Fenster 2021.

Mehrere Stellplätze sowie ein überdachter Unterstand runden dieses exklusive Seeanwesen in Othmarschen ab.

Ausstattung

Einbauküche
Keller
Boden Parkett
Kamin / Ofen

Lage

Othmarschen im Hamburger Westen besticht durch seine idyllische Lage an der Elbe und seine grünen, gepflegten Wohnstraßen. Historische Architektur und ein einladendes Ambiente schaffen eine harmonische Mischung aus urbanem Lebensstil und natürlicher Schönheit. Die nahe Waitzstraße mit individuellen Boutiquen, Cafés und Restaurants sowie vielfältige Sportmöglichkeiten bieten hohen Komfort und Lebensqualität.

Parks, Grünflächen und das Elbufer laden zu Spaziergängen, Erholung und Aktivitäten im Freien ein. Othmarschen überzeugt zudem mit kultureller Vielfalt: Galerien, lokale Veranstaltungen und ein lebendiges Miteinander prägen das Viertel.

Ausgezeichnete Schulen und die sehr gute Verkehrsanbindung machen Othmarschen zu einem begehrten Wohnort für Familien, Paare und Menschen, die eine besondere Wohnlage mit Wohlfühlatmosphäre suchen.


Courtage

3,57 % inkl. ges. MwSt.

Kontakt

Büro Blankenese

Blankeneser Bahnhofstraße 8
22587 Hamburg

Tel. (040) 86 44 44
Fax. (040) 86 64 50 15

Alternative Objekte

Kaufen, Haus, Hamburg, Deutschland

ca. 157 m²

Wohnfläche

4

Zimmer

511 m²

Grundstück

Kaufen, Wohnung, Hamburg - Lokstedt, Deutschland

ca. 67 m²

Wohnfläche

2

Zimmer

1.473 m²

Grundstück

Kaufen, Wohnung, Hamburg - Blankenese, Deutschland

ca. 97 m²

Wohnfläche

3

Zimmer