Stilikone in Bestlage!
Hamburg - Harvestehude, Deutschland
Kaufpreis:
2.950.000 Euro
Eckdaten
| Objekt ID: | A-0122 |
|---|---|
| Baujahr: | 1905 |
| Grundstücksfläche: | ca. 1.069 m² |
| Wohnfläche: | ca. 221 m² |
| Zimmer: | 7,5 |
| Schlafzimmer: | 3,5 |
| Bäder: | 1 |
| Kaufpreis: | 2.950.000 EUR |
Objektbeschreibung
In einem der prächtigsten, denkmalgeschützten Jugendstilgebäude dieser renommierten Straße – 1905 nach Entwurf von Edgar Foßhag errichtet – erwartet Sie eine Wohnwelt, die hanseatische Eleganz und historischen Glanz vereint. Das Entrée beeindruckt mit historischem Fahrstuhl sowie einem opulenten Treppenhaus mit stuckverzierten Spiegeln und eindrucksvollem Aufgang.
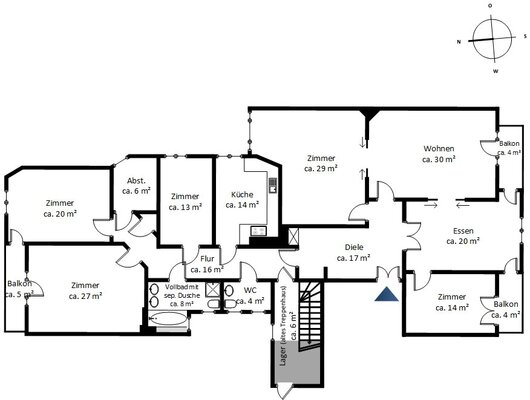
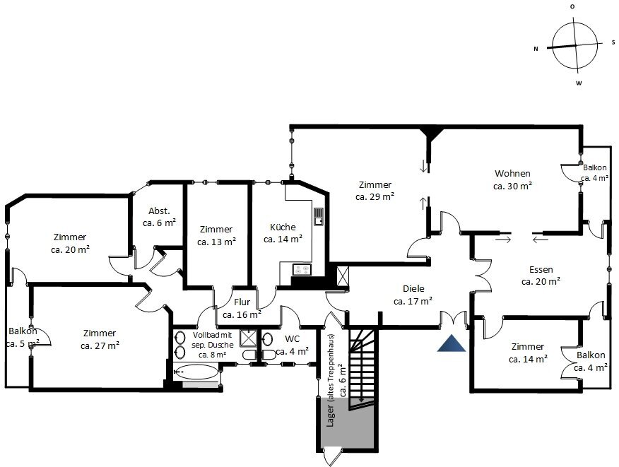
Die Wohnung im zweiten Obergeschoss bietet ca. 221 m² Wohnfläche und 7,5 Zimmer. Hohe Decken von ca. 3,80 m, edles Fischgrätparkett, originale Pitchpinedielen und prachtvolle Stuckelemente schaffen ein repräsentatives, zugleich wohnlich-elegantes Ambiente.
Herzstück ist das klassische Berliner Zimmer, das durch Großzügigkeit und Licht besticht. Von hier führt eine Flügeltür ins Esszimmer mit Südbalkon. Angrenzend liegt der Wohnbereich mit weiterem Balkon sowie ein Arbeitszimmer – alle mit Blick ins Grüne.
Schlaf-, Gäste- und Kinderzimmer sind vom Wohnbereich getrennt. Die Wohnküche ist separiert und bietet Raum für gesellige Runden. Ein großes Bad mit Wanne und Dusche sowie ein Gäste-WC ergänzen den Komfort. Zwei weitere Zimmer nach Norden – eines mit Balkon zur Hofseite – bieten ideale Rückzugsräume.
Die Wohnung ist renovierungsbedürftig und bietet Potenzial für moderne Anpassungen, z. B. offenes Wohnkonzept oder zusätzliches Duschbad. Ein Abstellraum in der Wohnung, Fahrradstellflächen im Souterrain sowie Fernwärme runden das Angebot ab.
Ausstattung
| Einbauküche | |
|---|---|
| Balkon | |
| Aufzug |
Lage
Die Immobilie befindet sich in einer der begehrtesten Wohnlagen Hamburgs im Stadtteil Harvestehude. Das Umfeld ist geprägt von repräsentativen Altbauten, eleganten Villen und einem ruhigen, grünen Charakter. Gleichzeitig überzeugt die Lage durch ihre hervorragende Anbindung an den öffentlichen Nahverkehr sowie die schnelle Erreichbarkeit der Innenstadt. Vielfältige Einkaufsmöglichkeiten, gehobene Gastronomie und charmante Cafés liegen in unmittelbarer Nähe. Besonders hervorzuheben ist die Nähe zum Isemarkt, einem der schönsten Wochenmärkte Hamburgs, der das Viertel mit seinem besonderen Flair bereichert. Parks, Grünanlagen und die Außenalster laden zusätzlich zu Sport, Spaziergängen und Erholung im Freien ein. Die Kombination aus urbanem Leben, historischer Eleganz und hoher Wohnqualität macht diesen Standort zu einer der exklusivsten Adressen Hamburgs.
Courtage
3,57 % inkl. ges. MwSt.
Kontakt
Büro Blankenese
Blankeneser Bahnhofstraße 8
22587 Hamburg
Tel. (040) 86 44 44
Fax. (040) 86 64 50 15
Alternative Objekte
Kaufen, Haus, Hamburg, Deutschland
ca. 157 m²
Wohnfläche4
Zimmer511 m²
GrundstückKaufen, Wohnung, Hamburg - Lokstedt, Deutschland
ca. 67 m²
Wohnfläche2
Zimmer1.473 m²
GrundstückKaufen, Wohnung, Hamburg - Blankenese, Deutschland
ca. 97 m²
Wohnfläche3
Zimmer